Mehr anzeigen zum Thema Beschreibung
Beschreibung
Dieses Ein- bis Zweifamilienhaus wurde 1970 an ein bestehendes Gebäude angebaut. Es wurde in Massivbauweise mit Ytongsteinen errichtet.
Es befindet sich in einem gepflegten Zustand. Größere Renovierungen wurden wie folgt durchgeführt;
Fenster 1998 erneuert
Dach 1998 neu gedämmt und gedeckt
Nachtspeicheröfen ca. Mitte der 80er Jahre erneuert, Elektroboiler (für die Warmwasseraufbereitung) 2023 erneuert.
Im Erdgeschoss befindet sich ein großes Wohnzimmer, ein Esszimmer, Gäste-WC, Badezimmer, Schlafzimmer mit Balkon und die Küche.
Im Ess- und Wohnzimmer besteht die Möglichkeit einen Schwedenofen anzuschließen. Eine Einzelgarage ist mit leichtem Versatz im Haus integriert.
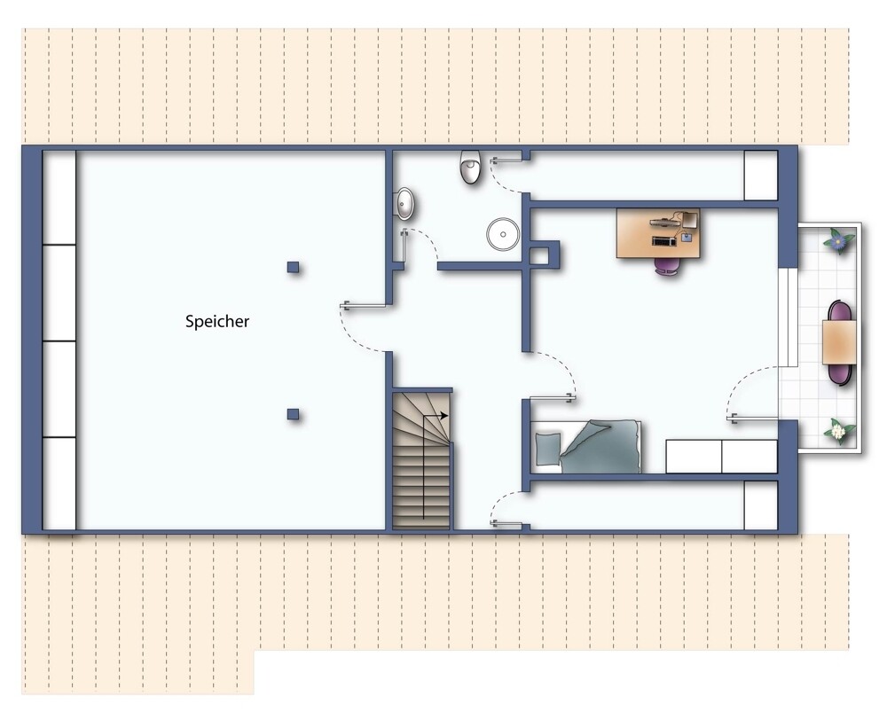
Das Dachgeschoss des Objekts ist teilweise ausgebaut. Ein großer Speicher könnte als zusätzlicher Wohnraum erweitert werden. Ein Schlafzimmer mit Balkon und ein Badezimmer ist bereits vorhanden. Aufgrund der durchdachten Aufteilung könnten hier auch zwei getrennte Wohnungen erstellt werden.
Das Haus ist bis auf den Bereich unter der Garage komplett unterkellert. Der großzügige Garten ist nach Süd-Osten ausgerichtet und komplett eingezäunt. Für die Entsorgung von Grüngut besteht ein Geh- und Fahrtrecht über das Nachbargrundstück.
Es befindet sich in einem gepflegten Zustand. Größere Renovierungen wurden wie folgt durchgeführt;
Fenster 1998 erneuert
Dach 1998 neu gedämmt und gedeckt
Nachtspeicheröfen ca. Mitte der 80er Jahre erneuert, Elektroboiler (für die Warmwasseraufbereitung) 2023 erneuert.
Im Erdgeschoss befindet sich ein großes Wohnzimmer, ein Esszimmer, Gäste-WC, Badezimmer, Schlafzimmer mit Balkon und die Küche.
Im Ess- und Wohnzimmer besteht die Möglichkeit einen Schwedenofen anzuschließen. Eine Einzelgarage ist mit leichtem Versatz im Haus integriert.
Das Dachgeschoss des Objekts ist teilweise ausgebaut. Ein großer Speicher könnte als zusätzlicher Wohnraum erweitert werden. Ein Schlafzimmer mit Balkon und ein Badezimmer ist bereits vorhanden. Aufgrund der durchdachten Aufteilung könnten hier auch zwei getrennte Wohnungen erstellt werden.
Das Haus ist bis auf den Bereich unter der Garage komplett unterkellert. Der großzügige Garten ist nach Süd-Osten ausgerichtet und komplett eingezäunt. Für die Entsorgung von Grüngut besteht ein Geh- und Fahrtrecht über das Nachbargrundstück.
Mehr anzeigen zum Thema Lage
Lage
Diese Objekt befindet sich im Ortskern von Stallwang.
Alle Geschäfte des täglichen Bedarfs, sowie Schulen, Kindergarten, Ärzte, Tankstelle, Restaurants usw. finden Sie direkt im Ort.
Die reizvolle Landschaft des Bayerischen Waldes überzeugt hier in seinen vollen Zügen. Wer seinen Kindern die Möglichkeit bieten möchte in einer ruhigen Ortslage aufwachsen zu können oder Familien die Ruhe und angenehmes Klima suchen sind hier genau richtig.
Stallwang bietet mit dem direkten Anschluss an die B20 sehr gute Verkehrsanbindungen.
So erreicht man Straubing und Cham jeweils in ca. 25 Minuten.
Auch auf die Autobahn A3 – Nürnberg-Passau gelangt man über die B20-Anschlussstelle Steinach in ca. 17 Minuten.
Alle Geschäfte des täglichen Bedarfs, sowie Schulen, Kindergarten, Ärzte, Tankstelle, Restaurants usw. finden Sie direkt im Ort.
Die reizvolle Landschaft des Bayerischen Waldes überzeugt hier in seinen vollen Zügen. Wer seinen Kindern die Möglichkeit bieten möchte in einer ruhigen Ortslage aufwachsen zu können oder Familien die Ruhe und angenehmes Klima suchen sind hier genau richtig.
Stallwang bietet mit dem direkten Anschluss an die B20 sehr gute Verkehrsanbindungen.
So erreicht man Straubing und Cham jeweils in ca. 25 Minuten.
Auch auf die Autobahn A3 – Nürnberg-Passau gelangt man über die B20-Anschlussstelle Steinach in ca. 17 Minuten.
Mehr anzeigen zum Thema Lage
Energieausweis
A+
< 30
in Bearbeitung / wird gerade erstellt
30 – 50
A
50 – 75
B
75 – 100
C
100 – 130
D
130 – 160
E
160 – 200
F
200 – 250
G
250 – > 250
H
> 250
- Nutzungsart
- Wohnen
- Baujahr lt. Energieausweis
- 1970
- Endenergieverbrauch
- 66,6 kWh/(m²a)
- Energieausweis
- Verbrauchsausweis
- Energieausweis gültig bis
- 30.09.2035
- Energieeffizienzklasse
- B
- wesentlicher Energieträger
- Elektro
Mehr anzeigen zum Thema Lage
Gesamtpreiskalkulator
- Kaufpreis
- 259.000 €
- Grunderwerbsteuer
- 9.065 €
- Maklerprovision
- 9.246 €
- Notargebühren *
- 3.885 €
- Grundbucheintrag *
- 1.295 €
- Gesamtkosten
- 282.491 €
* Für die Berechnung der Notar- und Grundbuchkosten wird ein Standardwert von 1,5% bzw. 0,5% verwendet.